Rodinná roubenka s jasnou vizí
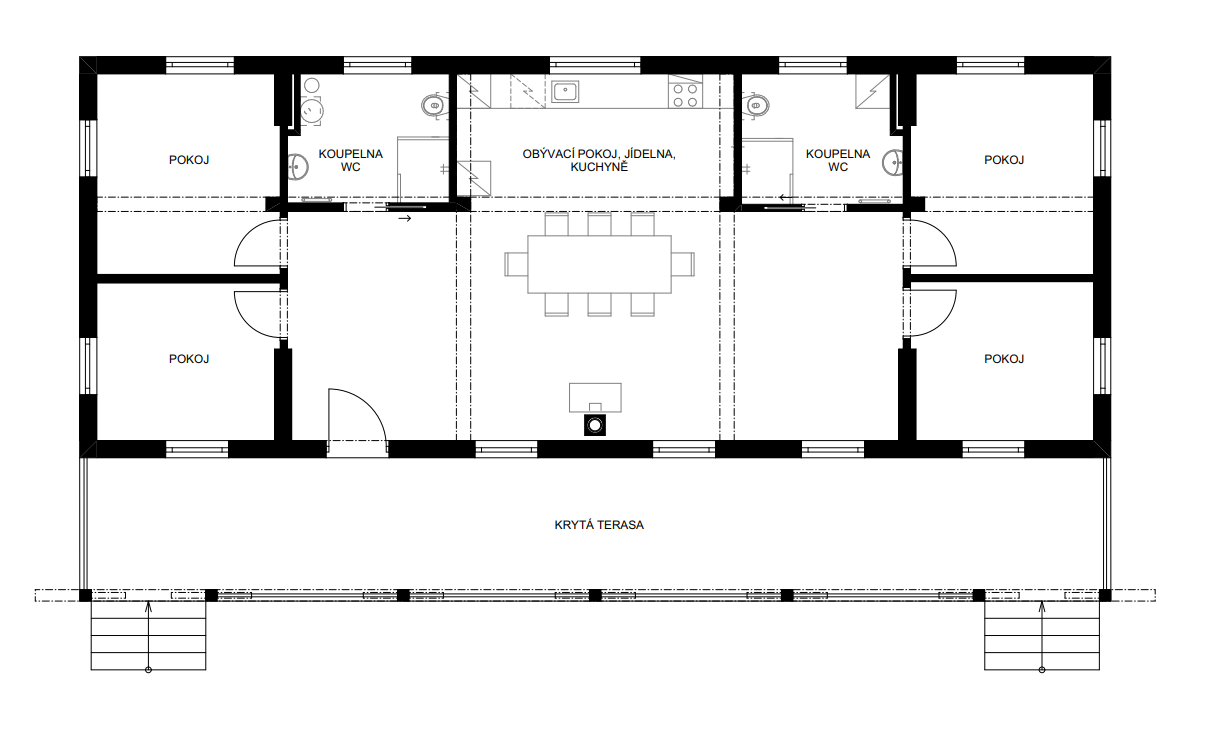
Majitel této roubenky – říkejme mu třeba Martin – měl jasný cíl: postavit svým dospělým dětem dům, kam by mohly o víkendech jezdit a být mu tak i s vnoučaty nablízku. A aby to bylo fér, nechal jim ji postavit osově souměrnou – ložnice jsou zrcadlově otočené a mezi nimi se nachází společný rodinný prostor. Když se tedy naskytl vhodný pozemek v požadované lokalitě, Martin ani na chvilku nezaváhal.
Zastavěná plocha
Užitná plocha
Dispozice
Cesta ke dřevěnému domu bez kompromisů
Mám rád jednoduché věci, jako je kámen a dřevo. Dřevěné domy se mi líbily odjakživa, pouští se do vyprávění, sotva usedneme ke stolu uprostřed hlavního prostoru, „a vždycky jsem si chtěl nějaký postavit.“ Kromě praktického řešení si tedy zároveň plnil i svůj sen. V našich časopisech se inspiroval ohledně realizačních firem, u první oslovené však nakonec neuspěl. „Měli krásné severské dřevo – mnohem hustší a tvrdší než naše, protože roste v těžších podmínkách, ale jejich nabídka byla omezená typovými řešeními, která nevyhovovala mojí představě.“ Jednání o případném individuálním řešení se vzhledem k nutným konzultacím v zahraniční mateřské společnosti na jeho vkus příliš vlekla, a tak se poohlédl po jiném dodavateli. „I díky tomu, že sídlí poblíž, jsem objevil pana Haniše – a tam bylo naopak všechno rychlé a pružné


Neobvyklé parametry
Jak vůbec přišlo na požadavek atypického řešení? Překvapivě za tím primárně nebyla potřeba dvou stejných jednotek, ale výčet toho, co by dům obsahovat neměl. „Vycházel jsem z toho, co nemám rád: lustry, chodby, střešní okna, balkony a klimatizaci. Naopak se mi líbí staré domy, jaké se stavěly třeba před sto lety – vcházelo se rovnou do místnosti, kde rodina žila pospolu, ne do chodby. Z té hlavní světnice se pak šlo do ložnice.“ Jako základ tedy zvolil jeden typový projekt předchozího zvoleného dodavatele a projektant mu ho upravil podle potřeb. „Nelíbila se mi toaleta uprostřed, takže ji posunul a vyšla z toho tahle symetrická varianta: čtyři ložnice, dvě koupelny a společný prostor s kuchyní.“ Při našem povídání u jídelního stolu se tedy netradičně nacházíme na ose domu. „Jestli to je ideální řešení, netuším,“ pokrčí Martin rameny, ale je na něm vidět, že osobně je s výslednou podobou roubenky spokojený. Stejně jako jeho děti. „Ještě tu nebydlí tak dlouho, ale úspěšně si zvykají.“
.jpg)
Na téhle roubence jsme pracovali s opravdovým potěšením. Už od samého začátku jsme si s investorem sedli – shodli jsme se na tom, že má smysl promýšlet každý detail. Ať už šlo o konstrukční řešení, nebo výběr materiálů do interiéru i exteriéru, všechno jsme společně ladili tak, aby výsledek opravdu stál za to. Skvěle se nám spolupracovalo také s projektantem Danielem Vlčkem a architektkou Jiřinou Pustějovskou – každý přispěl svým pohledem a zkušenostmi, což bylo pro celý projekt velkým přínosem. Stavba samotná pak probíhala hladce, podle schválených podkladů a ve vzájemné důvěře. A to je vždycky nejlepší recept na dům, který bude dobře sloužit a přinášet radost. Majitelům přejeme, ať se jim v roubence krásně žije, a vítáme je mezi milovníky dřeva a poctivého řemesla – mezi pravé roubenkáře.
Celý příběh
Prohlédněte si naše další realizace
Kontaktní formulář
Neváhejte se s námi spojit
Rád se Vám budu osobně věnovat, v klidu probereme Vaše představy a vyčlením si na Vás dostatek času.









.jpg)
.jpg)
.jpg)
.jpg)